서비스 설명
건축설계 및 인테리어 디자인 전문 '더안건축'입니다
각종허가도면, 기계도면, 실측도면 (지방실측도 진행)
도면기준으로 약 10평당 1.5만원꼴로 가격이 책정되며, 작업량판단후 정확한 금액책정해드립니다.
" 미비한 작업량, 당일작업 우선해드립니다 "
" 중규모 작업량, 24시간내 송부해드립니다 "
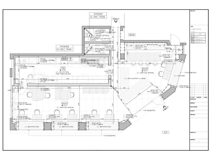
1. 건축, 인테리어 도면
2. 계통도, 배관도, 제품도면
3. 포토샾작업 (판넬, 보고서, 사진보정 등등 모든 수정가능)
+ 현장실측후 도면작성도 가능합니다. 전 지역 실측가능합니다. 레이저포인트, 롤러자등 전문장비 다 보유중이며 빠르고 정확하게 해드립니다.
※ 기본단위단가 가격은 장당을 기본으로하며,규모 및 디테일 수준에 따라 단가가 달라질 수 있습니다.
또한 장수에 따라 할인폭이 달리 적용되므로 작업량과 범위 협의 후 금액협의 가능하십니다.
감사합니다.
* 건축도면 작성
- 기본계획구성 : 평면도, 입면도, 단면도
- 기본허가구성 : 건물배치 및 개요, 면적산출표, 대지종횡단면도, 오배수계통도, 1층 평면도, 지붕층 평면도
정면도, 우측면도, 좌측면도, 배면도, 주단면도, 창호일람표, 창호부호도
* 인테리어도면 작성
- 기본계획구성 : 평면도, 입면도, 컬러평면도
- 실시도면구성 : 전체평면도, 전체천정도, 전체내부입면도, 부분단면상세도(필요에 따라),
평면도, 입면도, 천정도 컬러링 도면
- 프레젠테이션 : 프레젠테이션 ppt 작성
1. 미리 도면 양식 및 레이어를 보내주시면, 거기에 맞춰 작업합니다.
2. 업무 범위를 미리 말씀해주셔야합니다. (몇장, 무슨도면이 필욘한지)
3. 작업일은 1일 기준이며, 대량의 장수가 아닌경우에야 아무리길어도 2일내로 끝납니다. 기간은 협의시 일정 조율합니다.
4. 구매 후 뜨는 제 연락처로 문자 한통 부탁드립니다. ^^ (작업진행중 문의, 작업진행과정 안내문자발송에 필요)
문자전송이 불편하시면 전화로 주셔도 무관합니다. ^^
5. 작업 완료 후 필요하시면 수정은 언제든 자유롭게 문의주시면 되십니다. ^^
원하시는 만큼의 퀄리티로 만들어들이니, 협의전 미리 참고하셔서 얼만큼 디테일하게 원하시는지 말씀해주세요^^
*사용하는 폰트 및 이미지는 모두 무료이미지이므로 2차사용 가능하십니다.
*제작물의 저작권은 제작자인 저에게있으나, 구매자가 원래 말씀하신 용도로 사용하기위한것은 거래종료이후 사용하셔도 무방합니다만, 타용도로 사용하거나 타인이 사용할경우 저작권법에 의거하여 문제소지가 발생할 수 있습니다.
*제작물은 특별상호나 주소, 개인정보등을 기재하지않은상태에서 포트폴리오로 사용될 수 있습니다.
지역
주말 작업 가능여부
작업유형









가격 정보
도면/현장실측/제안서
각종 도면(CAD 건축,조경,기계,토목) / 실측 / 포토샵 평당 약 1만원. 금액협의요망
상업적 이용 가능
시안개수
1개
작업일
2일
수정 횟수
제한 없음
전문가 정보
총 거래 건수
만족도
회원구분
세금계산서
건축사사무소 6년, 인테리어회사 3년, 시공감리3년의 경험. 다년간의 경험으로 기본 인허가 및 인테리어 디자인, 공사관리에대한 건축 전반의 작업이 가능합니다. 서울 강북구 소재에 '더안건축'으로 이미 건축디자인쪽 굵직한 사업들 많이 진행하였으며, 디자인분야에서 선두로 나가고 있습니다. 건축사사무소업무 / 인테리어회사업무 / 시공감리 모두 가능하오니, 편히 연락주세요. (디자인, 감리, 건축분쟁조정, 법적검토 등)
수정 및 재진행
1. 당초 작업진행시 요구했던 기본적인요구 및 작업 퀄리티를 업시키는 수정은 제한없이 들어가며, 거래끝나고도 해드립니다. 2. 다만, 전혀 다른 안을 요구하시는경우 새로 제작해야하므로 수정불가합니다. (구조자체가 바뀐다거나, 모델링 형태가 전혀 달라 모델링 자체를 새로해야하는경우) 3. 수정후에 다시 기존안으로 돌아간다거나, 계속해서 수정을 번복하면서 업무를 과도하게 지연시키는경우 수정이 거부될 수 있습니다. 4. 기타 작업자 판단하에 작업량 수반되는 내용은 추가금액안내를 할 수 있으며, 환불또한 일할계산이아닌 업무작업진행도에 따른 환불로 진행합니다. 구조포함한 모든 텍스트,컬러,마감표현,구도등 변경가능하지만 모든 수정에는 "최초 작업요청할때 요청하신것에 한해서" 가능합니다. 추가되는작업이나 언급없던 수정은 작업자가 판단후 요금추가를 요청할 수 있습니다.
취소 및 환불 규정
[기본 규정] 1. 용역 제공이 개시되기 전: 취소 및 환불 가능 2. 용역 제공이 개시된 후 · 가분적 용역: 개시되지 않은 범위에 대한 취소 및 환불 가능 · 불가분적 용역: 취소 및 환불 불가 3. 제공된 용역이 구매 확정된 경우: 거래 금액을 정산 받은 전문가와 직접 취소 및 환불 협의 [참고 사항] · 다음의 경우에는 해당 기준을 따릅니다. - 전문가가 제시한 취소 조건이 기본 규정보다 의뢰인에게 유리한 경우 - 전문가가 별도로 명시한 사전 준비 사항(상담, 출장, 예약 등)과 이에 대한 취소 조건이 있는 경우 · 제공받은 용역이 표시·광고의 내용과 다르거나 계약 내용과 다르게 이행된 경우 용역을 공급받은 날부터 3개월 이내 또는 그 사실을 안 날 또는 알 수 있었던 날부터 30일 이내에 취소 및 환불이 가능합니다.
상품정보고시
| 서비스 제공자 | 더안건축 | 취소/환불 조건 | 취소 및 환불 규정 참조 |
| 인증/허가사항 | 상품 상세 참조 | 취소/환불 방법 | 취소 및 환불 규정 참조 |
| 이용조건 | 상품 상세 참조 | 소비자상담전화 | 결제 전 상담 제공 |
리뷰
4.8
(158)



















