서비스 설명
안녕하십니까.
다도건축사사무소 최연철 건축사 입니다.
건축시공 4년, 건축설계15년 경력으로 시공&설계 경험을 두루 가지고 있습니다.
현재까지 참여한 프로젝트는 협회 공식 65건, 비공식 120건 이상의 건축설계 프로젝트에
참여 하였습니다.
건축기획(규모검토)은 약 1,500건 이상의 경험과 다양한 데이터를 가지고 있습니다.
뿐만 아니라,
주거, 비주거, 관급공사, 현상설계, 턴키 등의 프로젝트에서
컨설팅, 기획, 각종심의, 설계, 인허가, 현장관리, 준공업무 등 전분야에서
수많은 경험을 가지고 있습니다.
마지막으로 항상 의뢰인의 입장에서 고민하는 건축사라고 말씀드리고 싶습니다.
감사합니다.
유튜브 채널: https://www.youtube.com/@다도건축사사무소
인스타 주소: https://www.instagram.com/dadoplan/
블로그 주소: https://dadoplan.tistory.com/
[ 현 직 ]
양천구 도시ㆍ건축위원회 심위위원
고양시 교통영향평가 심의위원
[ 건축설계 가능한 용도 ]
- 공동주택, 연립주택, 다세대, 주상복합, 단독주택, 다가구, 고시원
- 업무시설, 오피스텔, 종교시설, 제1종근린생활시설, 제2종근린생활시설, 호텔
- 물류창고, 공장, 지식산업센터, 생활형 숙박시설, 캠핑장,
- 플랜트, 방송국, 공항 등을 제외한 모든 건축물 가능
[ 사업분야 ]
- 신축, 증축, 개축, 재축, 이전, 대수선, 용도변경, 표시사항 변경 등
- 위법건축물 양성화
- 분양건축물, 임대건축물 설계
- LH, SH등 주택공사 매입주택 업무
- 역세권 활성화 사업, 역세권 청년임대주택, 역세권 장기전세주택 등
- 도시개발사업, 지구단위계획 수립 및 변경 등
[ 작업내용 ]
- 사업초기 규모검토, 사업성을 위한 컨설팅 업무
- 기획설계, 기본설계, 실시설계, 준공처리 등
- 공사시공 업체 선정, 현장관리 감독 등
[가격정보]
아래의 작업 내용과 가격은 작업의 난이도와 요청사항 따라 변경 될 수 있습니다.
(ex. 지구단위계획구역, 재정비촉진지구, 주상복합, 도시개발사업, 역세권 관련 사업 등)
A - TYPE (규모검토) / 10만원 ~
- 건축개요(분양, 임대면적표) / 한장
- 건축물 배치도 (건축 가능영역표기) / 한장
- 기본 법령관련 컨설팅
B-TYPE (건축설계) / 20만원 ~
- 건축개요(분양,임대면적표) / 한장
- 전층 평면도(PDF) / 한장 이상
- 기본 법령관련 컨설팅
C-TYPE (건축설계) / 30만원 ~
- 건축개요(분양,임대면적표) / 한장
- 전층 평면도(PDF) / 한장 이상
- 프로젝트 컨설팅
- 법규 검토서 / 1장 이상
※ 모든 의뢰는 유선협의 또는 미팅 후 작업을 진행 합니다. ※
[서비스 소개]
- 최종 확정되어 발송된 제작물의 저작권은 의뢰인에게 귀속됩니다. - 제작된 작업물은 포트폴리오로 사용될 수 있습니다.
[구매 시 유의사항]
- 작업의 난이도, 작업량에 따라 비용이 상이할 수 있습니다.
지역
주말 작업 가능여부
작업유형





가격 정보
패키지 별 주요 특징을 비교해 보세요
- 모든 패키지에는 건축개요, 컨설팅, 고해상도 파일 제공이 포함됩니다.
- STANDARD : 건축물 배치도 제공, 3일 소요, 1회 수정 가능
- DELUXE : 전층 평면도 제공, 5일 소요, 1회 수정 가능
- PREMIUM : 전층 평면도 및 법규 검토서 제공, 7일 소요, 1회 수정 가능
STANDARD
110,000원
DELUXE
220,000원
PREMIUM
330,000원
패키지 설명
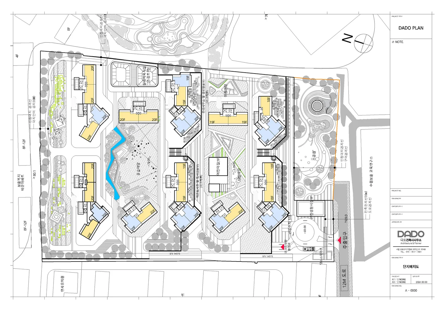
A-TYPE (규모검토)
- 건축개요 (한장) - 건축물 배치도 (PDF 한장 이상) (건축 가능영역표기) - 컨설팅
B-TYPE (건축설계)
- 건축개요 (한장) - 전층 평면도 (PDF 한장 이상) - 컨설팅
C-TYPE (건축설계)
- 건축개요 (한장) - 전층 평면도 (PDF 한장 이상) - 컨설팅 - 법규 검토서
고해상도 파일 제공
시안개수
1개
1개
1개
작업일
3일
5일
7일
수정 횟수
1회
1회
1회
전문가 정보
수정 및 재진행
- 컨셉 1회 수정 ( ex- 근린생활시설 → 업무시설 )
취소 및 환불 규정
[기본 규정] 1. 용역 제공이 개시되기 전: 취소 및 환불 가능 2. 용역 제공이 개시된 후 · 가분적 용역: 개시되지 않은 범위에 대한 취소 및 환불 가능 · 불가분적 용역: 취소 및 환불 불가 3. 제공된 용역이 구매 확정된 경우: 거래 금액을 정산 받은 전문가와 직접 취소 및 환불 협의 [참고 사항] · 다음의 경우에는 해당 기준을 따릅니다. - 전문가가 제시한 취소 조건이 기본 규정보다 의뢰인에게 유리한 경우 - 전문가가 별도로 명시한 사전 준비 사항(상담, 출장, 예약 등)과 이에 대한 취소 조건이 있는 경우 · 제공받은 용역이 표시·광고의 내용과 다르거나 계약 내용과 다르게 이행된 경우 용역을 공급받은 날부터 3개월 이내 또는 그 사실을 안 날 또는 알 수 있었던 날부터 30일 이내에 취소 및 환불이 가능합니다.
상품정보고시
| 서비스 제공자 | 다도건축사사무소 | 취소/환불 조건 | 취소 및 환불 규정 참조 |
| 인증/허가사항 | 상품 상세 참조 | 취소/환불 방법 | 취소 및 환불 규정 참조 |
| 이용조건 | 상품 상세 참조 | 소비자상담전화 | 결제 전 상담 제공 |
리뷰
4.8
(17)



