서비스 설명
[전문가 소개]
서울 소재 5년제 건축학 인증 대학 졸업
국내 메이저 디자인 건축 설계 사무소 출신
건축 설계 경력 8년
[설계 경력 및 수상 내역]
대한 건축 학회 2015 학생 작품전 우수상
단독 주택 4건 건축 허가 완료
근린 생활 시설 1건 건축 허가, 실시 설계 완료
관광 숙박 시설 (리조트 형, 단독 형) 1건 건축 허가, 실시 설계 완료
주민 센터 현상 설계 1건 당선 후 준공 완료, 4건 입상
오피스 3건 기본 설계, 실시 설계 완료
미술관 1건 건축 허가 완료
[작업과정]
설계 상담 및 견적 후 결제
설계 시안 제출
피드백 및 수정
최종 작업 파일 전달
[전달 주실 내용]
설계 대지 주소 (건축 법규에 맞게 계획 원할 시 필요)
건물 용도, 층수, 평수
설계 시 고려 되어야 할 사항
대략 손 스케치 (필수는 아니고 있으신 분들 대상)
[작업 가능 서비스]
건축 규모 검토
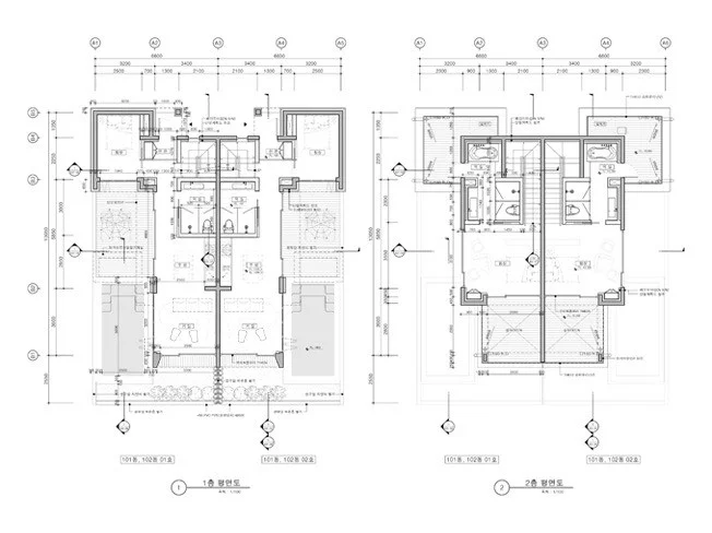
건축 기본 설계
건축 인 허가 설계
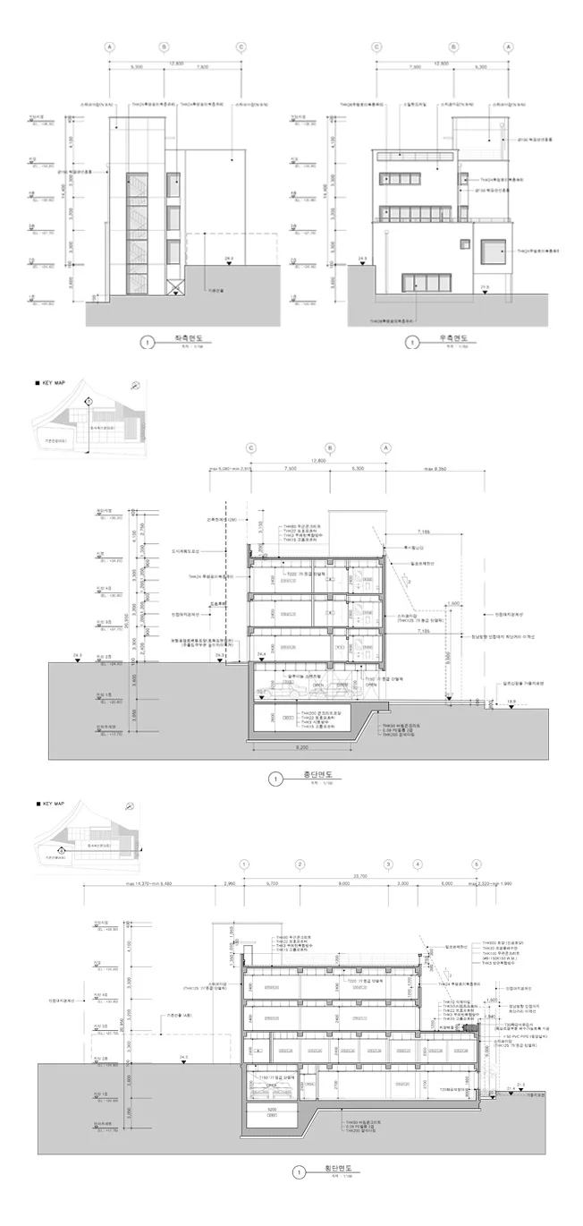
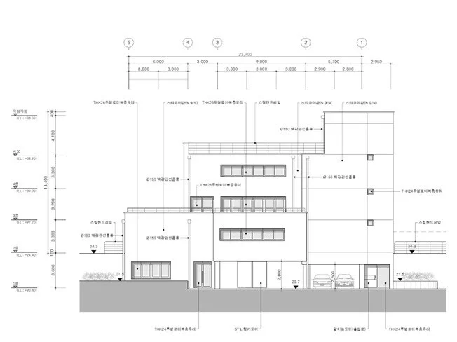
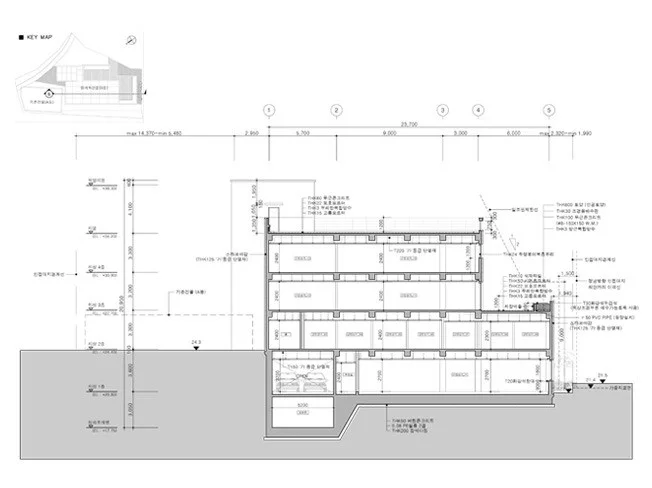
건축 실시 설계
세움터 작업
인테리어 설계
학교 과제
캐드 도면이 필요한 모든 분야 (제품, 가구, 기계 등등)
[안내사항]
완성된 작업물은 포트폴리오로 사용 될 수 있습니다. 원치 않으시면 미리 말씀 부탁 드립니다
작업의 양, 난이도에 따라 비용이 상이할 수 있습니다
지역
주말 작업 가능여부
작업유형



가격 정보
패키지 별 주요 특징을 비교해 보세요
- 모든 패키지는 1개의 시안, 수정 가능한 원본파일, 고해상도 파일 제공, 상업적 이용 가능을 포함합니다.
- STANDARD : 기존 도면 일부 수정, 단순 스케치 도면화, 1일 소요, 1만원부터 시작.
- DELUXE : 신규 계획 도면, 2일 소요, 3만원부터 시작.
- PREMIUM : 건축 인 허가 및 실시 설계 도면, 3일 소요, 5만원부터 시작.
STANDARD
10,000원
DELUXE
30,000원
PREMIUM
50,000원
패키지 설명
단순 도면
기존 도면 일부 수정 단순 스케치 도면화 3.3㎡ 당 3천원, 최소 1만원부터
기본 계획 도면
신규 계획 도면 3.3㎡ 당 4천원, 최소 3만원부터
인 허가 도면, 실시 설계 도면
건축 인 허가 도면 건축 실시 설계 도면 3.3㎡ 당 5천원, 최소 5만원부터
원본파일 제공
고해상도 파일 제공
상업적 이용 가능
시안개수
1개
1개
1개
작업일
1일
2일
3일
수정 횟수
1회
1회
1회
전문가 정보
수정 및 재진행
텍스트 및 간단한 도면 수정 작업 범위에서 1회 수정 가능합니다. 작업 범위가 넓어 작업 시간이 길어질 경우 협의 후 진행합니다.
취소 및 환불 규정
[기본 규정] 1. 용역 제공이 개시되기 전: 취소 및 환불 가능 2. 용역 제공이 개시된 후 · 가분적 용역: 개시되지 않은 범위에 대한 취소 및 환불 가능 · 불가분적 용역: 취소 및 환불 불가 3. 제공된 용역이 구매 확정된 경우: 거래 금액을 정산 받은 전문가와 직접 취소 및 환불 협의 [참고 사항] · 다음의 경우에는 해당 기준을 따릅니다. - 전문가가 제시한 취소 조건이 기본 규정보다 의뢰인에게 유리한 경우 - 전문가가 별도로 명시한 사전 준비 사항(상담, 출장, 예약 등)과 이에 대한 취소 조건이 있는 경우 · 제공받은 용역이 표시·광고의 내용과 다르거나 계약 내용과 다르게 이행된 경우 용역을 공급받은 날부터 3개월 이내 또는 그 사실을 안 날 또는 알 수 있었던 날부터 30일 이내에 취소 및 환불이 가능합니다.
상품정보고시
| 서비스 제공자 | 이수건축 | 취소/환불 조건 | 취소 및 환불 규정 참조 |
| 인증/허가사항 | 상품 상세 참조 | 취소/환불 방법 | 취소 및 환불 규정 참조 |
| 이용조건 | 상품 상세 참조 | 소비자상담전화 | (크몽 고객센터) 1544-6254 |
리뷰
4.9
(11)


