서비스 설명
-작업 과정 : 주문 > 시안제안 > 수정작업 > 원본파일전달 > 완료 및 구매확정
-상담 방식 : 유선상담 , 채팅상담 , 무선상담
현장 확인 또는 실측 필요한 경우 현장미팅
-사용 폰트 : 상담 후 진행 / 기본 : HY울릉도M
-원본파일 : 무료제공
-상업적 이용 : 상업적 이용 가능(무료)
-저작권 귀속 : 상호 협의
상호 협의 없을 경우
기본 : 전문가 및 의뢰인 귀속 (제3자 저작권 불가)
-포트폴리오 사용 : 협의 후 사용
-작업가능지역 : 안산 , 시흥 , 화성 , 수원 무료
지방 현장 답사의 경우 출장비 별도
※ 준비사항 ※
본인이 작업하신 스케치 또는 이미지파일
이미지화 또는 스케치 되어있는 것을 도면화 시켜드리므로
어떤 것을 도면화 할 준비가 필요합니다.
※ 진행결과물 ※
STANDARD
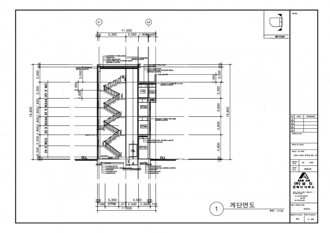
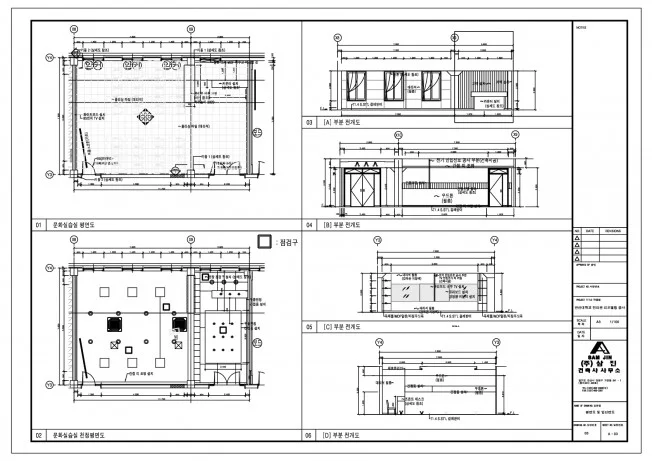
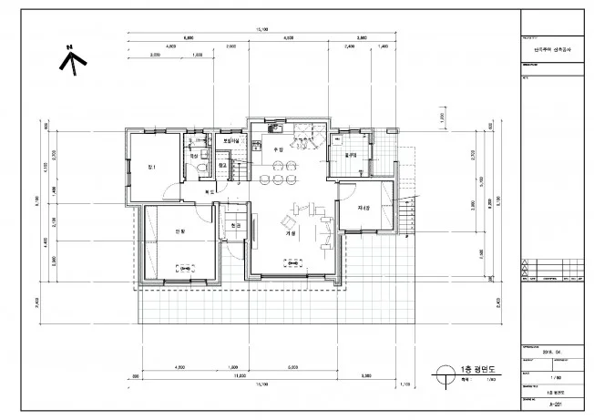
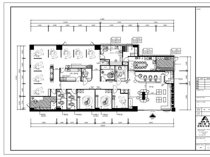
- 계획도면 (평면도)
- 작업기간 3일
- 5,000원
- 10평 평면도 1장
DELUXE
- 실시도면 (평면도)
- 작업기간 7일
- 30,000원
-20평 평면도 1장
PREMIUM
- 상세도면 (평면도)
- 작업기간 3일
- 50,000
- 30평 평면도 1장
※평수 증가에 따른 금액 산정 ※
평수 증가에 따른 금액 산정은
근린생활시설 , 공장 (인테리어 X) - 평당 2,000원 추가
단독주택 및 주택의 경우 - 평당 3,000원 추가
그 외 용도(복잡하지 않은 경우에 한하여) - 평당 1,000원 추가
인테리어 도면 및 3D 투시도의 경우 별도 협의 후 진행됩니다.
※ QNA ※
Q. 원본 파일과 관련되어 관련된 파일을 받을 수 있나요 ?
A. 넵. 작업도중에 말씀하시면 원하시는 파일 모두 받아볼 수 있습니다.
Q. 가격은 어떻게 책정되어있나요 ?
A. 평면도 기준 1장 기준의 가격입니다.
입면도 및 단면도의 경우 가격 협의 후 진행됩니다.
Q. 건축허가 또는 건축물 대장 변경등의 민원처리도 진행하시나요 ?
A. 건축허가의 경우 상세 협의 후 진행 가능합니다.
단 과제전 / 특수한 수정 도면 등은 별도 금액이 책정 될 수 있습니다.
지역
주말 작업 가능여부
작업유형






가격 정보
패키지 별 주요 특징을 비교해 보세요
- 모든 패키지는 2일 내 제공되며, 2회의 수정이 가능합니다. 기본 시안 1개가 포함됩니다.
- STANDARD : 간단한 계획도면과 10평 평면도 1장을 제공합니다.
- DELUXE : 실시도면과 20평 평면도 1장을 제공합니다.
- PREMIUM : 상세도면과 30평 평면도 1장을 제공하며, 제공 기간은 3일입니다.
STANDARD
10,000원
DELUXE
30,000원
PREMIUM
50,000원
패키지 설명
계획도면
간단한 계획도면 10평 평면도 1 장
실시도면
실시도면 20평 평면도 1 장
계획도면 및 실시도면
상세도면 30평 평면도 1장
시안개수
1개
1개
1개
작업일
2일
2일
3일
수정 횟수
2회
2회
2회
전문가 정보
수정 및 재진행
당일 간단한 수정일 경우 추가금 없이 진행가능합니다. 당일 어려운 수정 (30분 이상 소요시) 5천원부터 추가금 발생합니다. 똑같은 파일 재진행 시에는 첫번째 재진행시의 금액의 70프로 금액으로 진행됩니다. 두번쨰 재진행시의 금액은 50프로 금액으로 진행됩니다.
취소 및 환불 규정
[기본 규정] 1. 용역 제공이 개시되기 전: 취소 및 환불 가능 2. 용역 제공이 개시된 후 · 가분적 용역: 개시되지 않은 범위에 대한 취소 및 환불 가능 · 불가분적 용역: 취소 및 환불 불가 3. 제공된 용역이 구매 확정된 경우: 거래 금액을 정산 받은 전문가와 직접 취소 및 환불 협의 [참고 사항] · 다음의 경우에는 해당 기준을 따릅니다. - 전문가가 제시한 취소 조건이 기본 규정보다 의뢰인에게 유리한 경우 - 전문가가 별도로 명시한 사전 준비 사항(상담, 출장, 예약 등)과 이에 대한 취소 조건이 있는 경우 · 제공받은 용역이 표시·광고의 내용과 다르거나 계약 내용과 다르게 이행된 경우 용역을 공급받은 날부터 3개월 이내 또는 그 사실을 안 날 또는 알 수 있었던 날부터 30일 이내에 취소 및 환불이 가능합니다.
상품정보고시
| 서비스 제공자 | 0Young0 | 취소/환불 조건 | 취소 및 환불 규정 참조 |
| 인증/허가사항 | 상품 상세 참조 | 취소/환불 방법 | 취소 및 환불 규정 참조 |
| 이용조건 | 상품 상세 참조 | 소비자상담전화 | 결제 전 상담 제공 |
리뷰
14건
5.0
(14)



