최근 받은 리뷰
서비스 설명
안녕하세요!
건축설계사무실에서 6년차 및 프리랜서 4년차 건축인입니다.
전문적인 결과물과 경제적인 도면을 제공 해 드립니다.
최근 수주현황! (2019년~2021년)
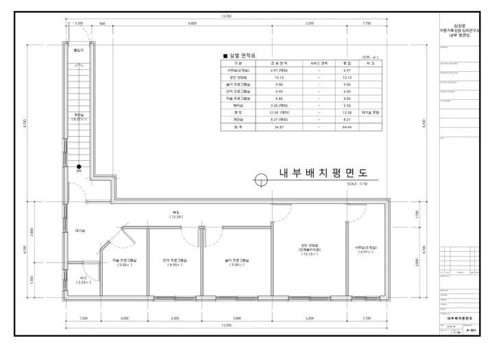
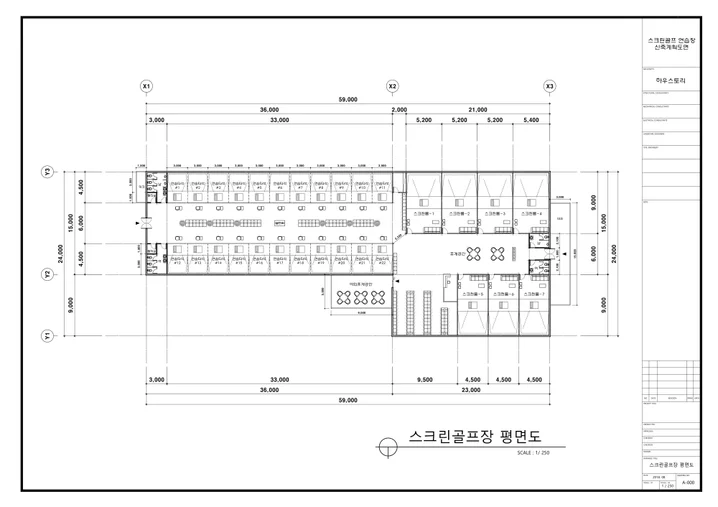
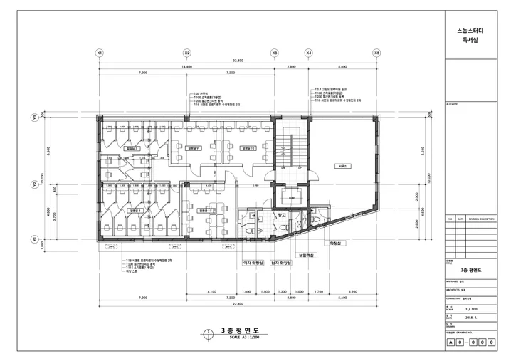
·실내 스크린골프장 인테리어 계획도 작업. (건축신고 및 소방에 맞춰 작업) - 업체와 100건 이상 완료.
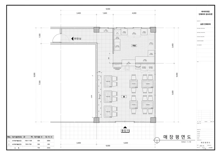
·실내 테니스장, 카페, 식당등 인테리어 도면 작업. (건축신고 및 소방에 맞춰 작업) -
업체와 40건 이상 완료. / 천정도, 전기도면(등기구, 스위치), 설비도면(배수구, 상수도배관도) 완료.
·모델하우스 내 겸본주택 변경 도면 작업. - 거래업체 소개로 3건 이상 완료. / 아파트분야 도면작업가능.
·제주시 게스트하우스 주택 , 신축주택, 리모델링 계획도면 작업. - 업체와 10건 이상 완료.
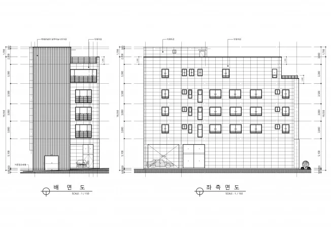
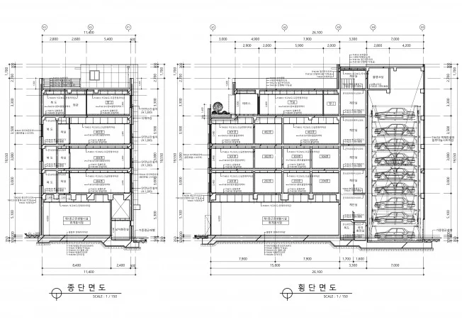
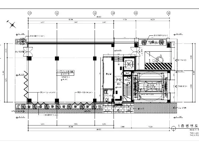
·서울 및 경기도내 학교건물 신축 및 리모델링 공사 허가도면 완료. - 업체와 10건 이상 완료.
·이외에 여러 업체와 협업하면서 만족도 있는 결과물을 제공해드리고 있습니다.
작업가능 범위사항!
·간단한 스케치(손그림) 이미지 및 현장사진으로 도면화하여 제공함.
·원본도면 없이 이미지만 있는 허가도면을 계획에 맞춰 도면화하여 제공함.
·신축건물 및 리모델링 공사 인허가도면 제공함. (업체와 협의하에 진행함.)
·간단한 전기도면 및 설비도면 제공함.
·3D(스케치업등) 작업물을 도면화 제공함.
·결과물이 낮은 조감도(스케치업) 이미지 작업물 제공함.
·현장방문 실측 현황도 작업 제공함.
·이외에 원하시는 자료에 도면화 제공함. (협의후 진행)
금액 산정 이해!
1. 작업물(하) - 간단한 평면도 10평에 대한 금액 산정이며, 평당 3천원에 작업을 진행합니다.
2. 작업물(중) - 설계개요/배치도/평면도/입면도/단면도/창호도 등 건축인허가에 필요한 도면을 작업을 진행합니다. 이에 경우 기본 1장에 대한 금액 책정이면 추가금액이 더 나올 수있습니다.
3. 작업물(상) - 건축 프로젝트에 대한 전반적인 도면 작업 진행을 합니다.
※위의 금액산정 예시는 금액산정을 위해 간략히 이해에 범위를 위한 내용이며, 의뢰하시는 작업량을
협의 후에 금액산정이 이루어질수 있습니다.
결과물 수정 관한 사항!
1. 작업물(하) - "최초 협의한 사항 중" 기구, 문자, 치수에 수정은 1회에 한하여 무료로 제공됨.
2. 작업물(중) - "최초 협의한 사항 중" 벽체 1곳, 기구, 문자, 치수에 수정은 1회에 한하여 무료로 제공됨.
3. 작업물(상) - "최초 협의한 사항 중" 벽체 2곳, 기구, 문자, 치수에 수정은 1회에 한하여 무료로 제공됨.
서비스 진행 과정!
1. 작업량, 금액, 일정협의
2. 작업물 제공 및 검토 - 결과물 이미지 자료 제공 / 수정사항 체크
3. 작업물 수정 및 검토 완료 - 최종 자료 및 원본 자료 제공
검토사항!
1. 결과물 : JPG, PDF, 원본파일
2. 저작권 : 결과물에 경우 타인에게 제공되지 않으며, 업체 홍보를 위해 저화질 이미지로 쓰일수 있음.
3. 보존기간 : 결과물에 추가 요청에 경우 1년내에 무료로 제공하며, 이후 추가금액으로 제공함.
4. 폰트 : 무료 폰트로 진행함.
지역
주말 작업 가능여부
작업유형



가격 정보
패키지 별 주요 특징을 비교해 보세요
- 모든 패키지는 1개의 시안, 수정 가능한 원본파일, 고해상도 파일 제공, 상업적 이용 가능을 포함합니다.
- STANDARD : 간단한 CAD 도면작업, 2일 소요, 10㎡당 3천원.
- DELUXE : 계획도면 및 인테리어 작업, 3일 소요, 10㎡당 5천원.
- PREMIUM : 허가도면 및 실시설계, 5일 소요, 10㎡당 1만원.
STANDARD
30,000원
DELUXE
50,000원
PREMIUM
100,000원
패키지 설명
CAD 도면작업(하)
간단한 CAD 도면작업(10㎡당 3천원), 기존 도면 작업등...
CAD 도면작업(중)
계획도면, 인테리어등(10㎡당 5천원)
CAD 도면작업(상)
허가도면, 실시설계등(10㎡당 1만원)
원본파일 제공
고해상도 파일 제공
상업적 이용 가능
시안개수
1개
1개
1개
작업일
2일
3일
5일
수정 횟수
1회
1회
1회
전문가 정보
수정 및 재진행
01. 전문가와 의뢰인 간의 상호 협의 후 청약철회가 가능합니다. 02. 전문가의 귀책사유로 디자인작업을 시작하지 않았거나 혹은 이에 준하는 보편적인 관점에서 심각하게 잘못 이행한 경우 결제 금액 전체 환불이 가능합니다. 03. 전문가가 작업 기간 동안 지정된 서비스를 제공하지 못할 것이 확실한 경우 지급받은 서비스 비용을 일할 계산하여 작업물 개수와 작업 기간 일수만큼 공제하고 잔여 금액을 환불합니다. 04. 서비스 받은 항목을 공제하여 환불하며, 공제 비용은 정가 처리됩니다. 가. 소비자 피해 보상 규정에 의거하여 작업물 원본의 멸실 및 작업 기간 미이행 및 이에 상응하는 전문가 책임으로 인한 피해 발생 시, 전액 환불 나. 시안 작업 진행된 상품 차감 환불 ⓐ. "디자인"에 대한 금액이 서비스 내 별도 기재가 되지 않았거나, 디자인 상품 패키지 내 수정 횟수가 1회(1회 포함) 이상인 서비스 상품의 시안 or 샘플이 제공된 경우 → 구매금액의 10% 환불(디자인 비용이 별도 기재되어 있는 경우, 해당금액 차감 후 환불) ※ 시안 제공 및 수정이 추가로 이뤄진 경우 환불 금액내 수정 횟수에 따라 분할하여 환불. 05. 주문 제작 상품 등 서비스 받은 항목이 없으며, 결제 후 1일 이내 작업이 진행되기 전 시점은 전액 환불 가능. 06. 다만, 환불이 불가능한 서비스에 대한 사실을 표시사항에 포함한 경우에는 의뢰인의 환불요청이 제한될 수 있습니다. 가. 고객의 요청에 따라 개별적으로 주문 제작되는 재판매가 불가능한 경우(인쇄, 이니셜 각인, 사이즈 맞춤 등) ⓐ. 주문 제작 상품 특성상 제작(인쇄 등) 진행된 경우. ⓑ. 인쇄 색상의 차이 : 모니터의 종류에 따라 색상의 차이가 발생하며,인쇄 시마다 합판 인쇄 방법의 특성상 색상 표현의 오차가 발생함. ⓒ. 디자인 서비스이며 수정 횟수가 존재하지 않았던 상품일 경우 시안 수령 후 환불 불가
취소 및 환불 규정
[기본 규정] 1. 용역 제공이 개시되기 전: 취소 및 환불 가능 2. 용역 제공이 개시된 후 · 가분적 용역: 개시되지 않은 범위에 대한 취소 및 환불 가능 · 불가분적 용역: 취소 및 환불 불가 3. 제공된 용역이 구매 확정된 경우: 거래 금액을 정산 받은 전문가와 직접 취소 및 환불 협의 [참고 사항] · 다음의 경우에는 해당 기준을 따릅니다. - 전문가가 제시한 취소 조건이 기본 규정보다 의뢰인에게 유리한 경우 - 전문가가 별도로 명시한 사전 준비 사항(상담, 출장, 예약 등)과 이에 대한 취소 조건이 있는 경우 · 제공받은 용역이 표시·광고의 내용과 다르거나 계약 내용과 다르게 이행된 경우 용역을 공급받은 날부터 3개월 이내 또는 그 사실을 안 날 또는 알 수 있었던 날부터 30일 이내에 취소 및 환불이 가능합니다.
상품정보고시
| 서비스 제공자 | PillGun | 취소/환불 조건 | 취소 및 환불 규정 참조 |
| 인증/허가사항 | 상품 상세 참조 | 취소/환불 방법 | 취소 및 환불 규정 참조 |
| 이용조건 | 상품 상세 참조 | 소비자상담전화 | 결제 전 상담 제공 |
리뷰
84건
5.0
(84)













