이 전문가의 다른 서비스 리뷰
서비스 설명
대상자
- 인테리어 디자인 및 설계를 준비하는 개인 고객, 사업자, 시공사
- 주거, 상업, 사무공간 등 다양한 유형의 인테리어 작업을 계획하는 분들
서비스 내용
- 고객 맞춤형 3D 인테리어 디자인과 2D 설계 도면을 제공합니다.
- 1차 디자인 제안부터 최종 자료 전달까지 체계적인 작업 과정을 통해 고객의 만족을 극대화합니다.
- 필요한 경우 현장 미팅을 통해 공간의 특성과 요구사항을 더욱 면밀히 반영할 수 있습니다.
전문가 소개
인테리어 설계 및 디자인 경력을 보유한 전문가가 직접 작업을 진행합니다. 주거 및 상업 공간의 다양한 프로젝트 경험을 바탕으로 창의적이고 실용적인 디자인을 제공합니다.
준비물
- 고객이 원하는 인테리어 스타일 레퍼런스 이미지
- 공간 치수 및 도면 자료
- 예산 범위 및 주요 요구사항
서비스 제공 절차
1. 고객 상담 및 요구사항 수집
고객이 원하는 인테리어 스타일, 공간의 용도, 예산, 주요 요구사항 등을 파악하기 위해 상담을 진행합니다.
공간의 치수, 참고할 레퍼런스 이미지 등을 수집하여 작업 방향을 설정합니다.
2. 결제 진행
상담을 통해 작업 범위와 요구사항이 확정되면 결제를 진행합니다.
꼭 상담 후 결제를 진행해 주셔야 원활한 작업이 가능합니다.
3. 현장 미팅 (필요 시 진행)
현장 방문이 필요한 경우 고객과 일정을 조율하여 현장 미팅을 진행합니다.
현장 미팅 시 공간의 실제 상태를 확인하고, 세부 사항을 추가로 협의합니다.
4. 1차 3D 디자인 제안서 제작
수집한 자료와 상담 내용을 바탕으로 1차 3D 디자인 제안서를 제작하여 고객에게 공유합니다.
디자인 초안은 주요 공간의 레이아웃과 스타일을 확인할 수 있도록 구성됩니다.
고객의 피드백을 받아 2차 디자인 작업에 반영합니다.
5. 2차 3D 디자인 수정 및 제안
고객의 의견을 반영하여 수정한 2차 3D 디자인을 제안합니다.
추가 수정이 필요한 경우 고객과 협의하여 최종 디자인 작업을 진행합니다.
6. 최종 3D 디자인 확정
2차 수정본을 바탕으로 최종 3D 디자인을 확정합니다.
최종 확정된 디자인 파일을 고객에게 전달하며, 이후 2D 설계 도면 제작을 시작합니다.
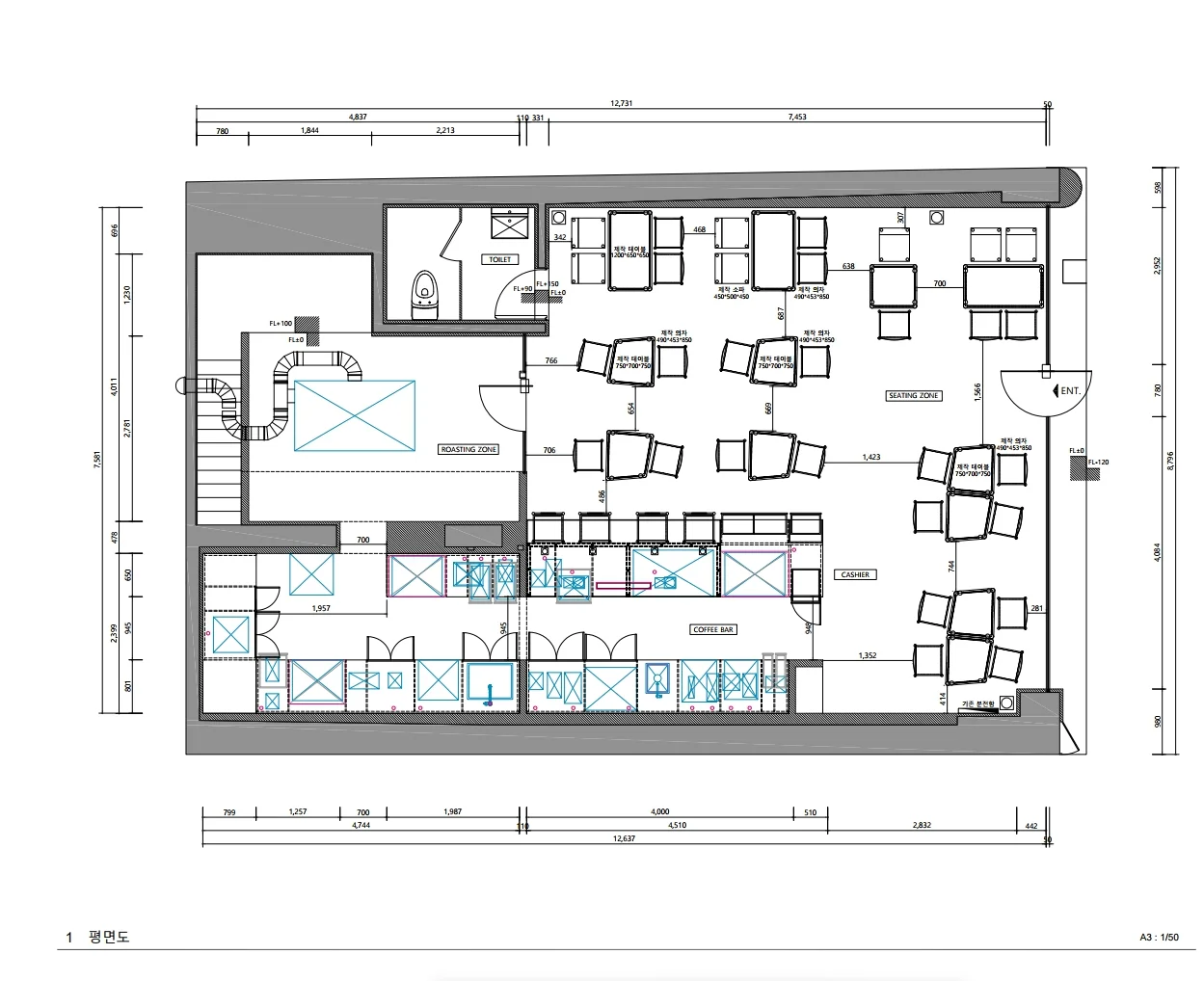
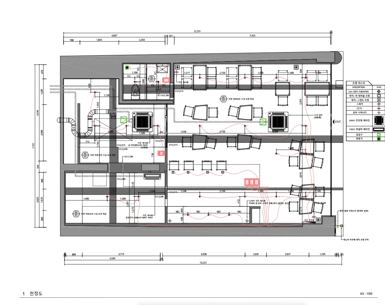
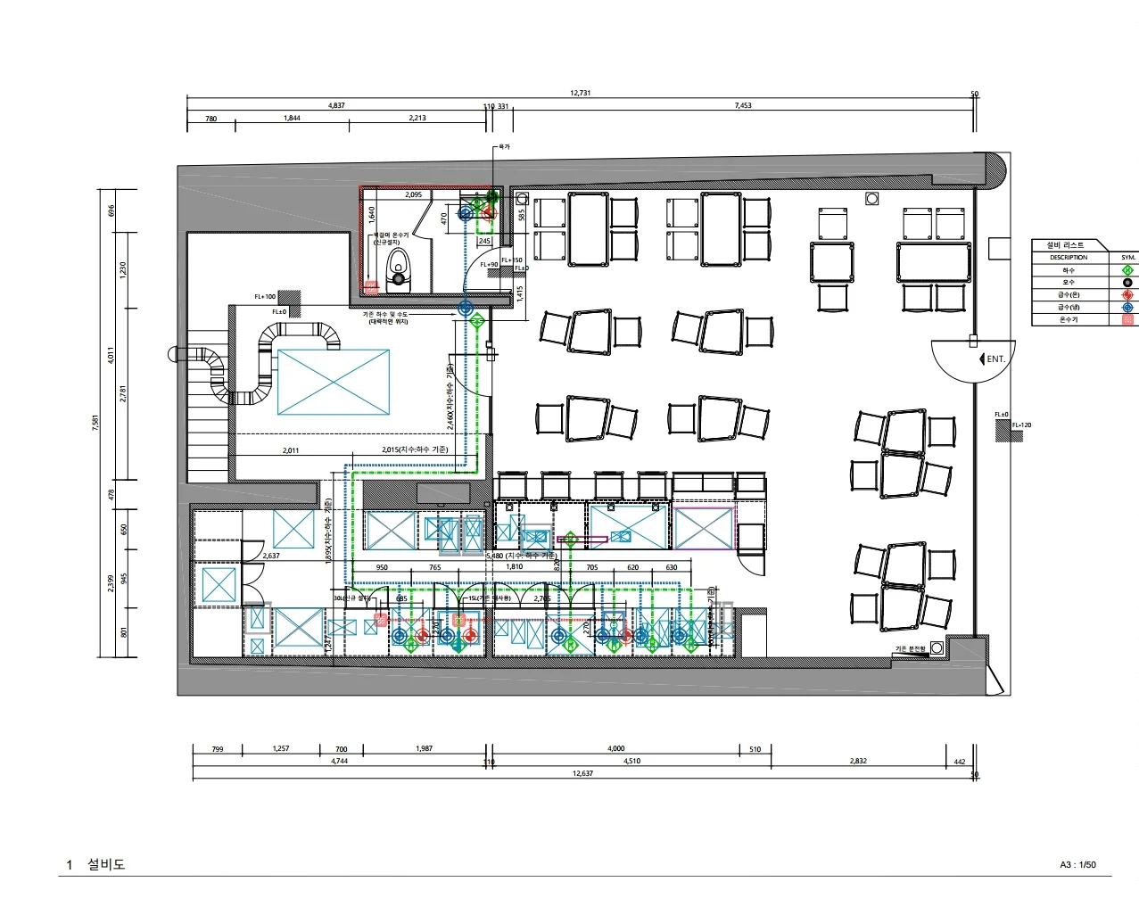
7. 2D 설계 도면 제작
시공에 필요한 평면도, 입면도, 전기·배관도 등을 상세하게 작성하여 도면을 완성합니다.
도면 작업이 완료되면 고객에게 제공하며, 추가 요청 사항이 있을 경우 수정 작업을 진행합니다.
8. 최종 자료 전달
완성된 3D 디자인 파일과 2D 설계 도면을 최종적으로 고객에게 전달합니다.
9. 계약 종료
최종 자료 전달 후 계약이 종료되며, 필요한 경우 후속 상담도 가능합니다.
추가적인 수정이나 작업 요청이 있을 경우 별도의 비용으로 진행할 수 있습니다.
의뢰인 준비사항
1. 공간 정보
정확한 공간 치수(평면도 또는 현장 측정 자료)
현장 사진(있을 경우)
2. 디자인 참고 자료
희망하는 인테리어 스타일에 대한 레퍼런스 이미지
선호하는 색상, 재료 및 가구 스타일
수정 및 재진행 안내
- 패키지별로 제공되는 수정 횟수 내에서 무료 수정이 가능하며, 초과 수정 요청 시 추가 비용이 발생할 수 있습니다.
- 수정 요청은 명확하고 구체적으로 작성해 주시면 빠르고 정확한 진행이 가능합니다.
- 작업 범위를 벗어나는 추가 요청이 있을 경우 별도의 계약으로 진행됩니다.
주말 작업 가능여부
작업유형









가격 정보
패키지 별 주요 특징을 비교해 보세요
- 모든 패키지는 3일 이내에 작업이 완료되며, 수정은 최대 2회까지 요청하실 수 있습니다.
- STANDARD : 20평 기준으로 공간 컨셉 제안서와 컨설팅을 제공하며, 1회 수정 가능합니다.
- DELUXE : 20평 기준으로 레이아웃 제안 및 평면도를 작성하며, 2회 수정 가능합니다.
- PREMIUM : 20평 기준으로 3D 모델링 및 고화질 렌더링 이미지를 제공하며, 2회 수정 가능합니다.
STANDARD
30,000원
DELUXE
250,000원
PREMIUM
750,000원
패키지 설명
공간 컨셉 제안 및 컨설팅
-20평 기준 -컨셉 제안서
레이아웃 제안 및 평면도 작성
-20평 기준 -평면도 작성 (실시설계 시 금액 추가)
3D 모델링 및 렌더링 이미지 작업
-20평 기준 -3D 모델링 및 렌더링 이미지 -고화질 렌더링 이미지
원본파일 제공
고해상도 파일 제공
시안개수
1개
1개
1개
작업일
3일
3일
3일
수정 횟수
1회
2회
2회
자주 묻는 질문
수정 횟수는 어떻게 되나요?
각 패키지에 따라 2회~5회 수정이 가능하며, 추가 수정은 별도의 비용으로 진행됩니다.
작업 기간이 얼마나 소요되나요?
작업 기간은 패키지에 따라 5일에서 10일까지 소요됩니다.
어떤 공간에 대해 작업이 가능한가요?
주거 공간, 상업 공간, 사무실, 카페, 매장 등 모든 유형의 공간에 대해 작업 가능합니다.
시공까지도 도와주시나요?
네, 저희는 설계와 디자인뿐만 아니라 시공 서비스도 함께 제공합니다. 고객의 예산과 요구사항에 맞춘 시공 계획을 수립하며, 신뢰할 수 있는 전문 시공팀이 직접 공사를 진행합니다.
긴급 작업도 가능한가요?
일정에 따라 가능 여부가 달라지므로, 긴급 작업이 필요하신 경우 미리 문의해 주세요.
전문가 정보
총 거래 건수
만족도
회원구분
세금계산서
*안녕하세요! muf 무프 스튜디오 입니다 *가능 프로젝트 및 작업 내용 - 현장실측 - 공간 연출 및 브랜딩 - 설계 및 인테리어 디자인 - CAD 도면 작성 - 기존 도면 수정 - 가구 도면 - 천정, 전기, 전열, 설비, 입면도 - 용도변경 도면 (실내건축기사 자격증 보유) - 실시설계 도면 - 3D 스케치업 작업 - 3D 렌더링 작업 - 인테리어 시공 이외 작업들은 문의 주시면 작업 가능한지 답변 드리겠습니다!
수정 및 재진행
1. 수정 범위 각 패키지에 포함된 수정 횟수 내에서 고객님의 요청에 따라 작업 결과물을 수정해드립니다. 2회까지 수정이 가능합니다. 2. 추가 수정 요청 제공된 수정 횟수를 초과하는 추가 수정 요청은 별도의 비용(₩50,000/회)이 발생합니다. 초과 수정 요청 시, 작업 시간을 고려하여 협의 후 진행됩니다. 3. 수정 요청 방법 수정 요청은 구체적이고 명확한 내용으로 작성해 주셔야 빠르고 정확하게 반영할 수 있습니다. 수정 범위는 제작 완료된 결과물 내에서만 가능합니다. 작업 진행 과정 중 새롭게 추가된 요구사항은 별도의 추가 작업으로 간주될 수 있습니다. 4. 재진행 안내 작업 결과물에 대한 대대적인 변경 또는 새로운 요구사항이 발생할 경우, 추가 작업으로 진행되며 별도의 비용이 청구됩니다. 작업 재진행 요청 시, 기존 작업 범위와 변경 요청 사항을 확인한 후 협의하여 재진행이 가능합니다. 5. 수정 및 재진행 처리 기간 일반적으로 수정 요청은 요청 접수 후 2~3일 내 처리됩니다. 추가 작업이나 재진행 요청 시, 작업 내용에 따라 소요 시간이 달라질 수 있으므로 협의 후 확정됩니다. 6. 수정이 어려운 경우 고객님의 요청이 작업 초기 상담 범위를 벗어난 경우 기존 결과물과 완전히 다른 스타일 또는 방향성을 요구할 경우 작업 프로세스를 크게 벗어나는 요청은 새로운 계약으로 진행될 수 있습니다.
취소 및 환불 규정
[기본 규정] 1. 용역 제공이 개시되기 전: 취소 및 환불 가능 2. 용역 제공이 개시된 후 · 가분적 용역: 개시되지 않은 범위에 대한 취소 및 환불 가능 · 불가분적 용역: 취소 및 환불 불가 3. 제공된 용역이 구매 확정된 경우: 거래 금액을 정산 받은 전문가와 직접 취소 및 환불 협의 [참고 사항] · 다음의 경우에는 해당 기준을 따릅니다. - 전문가가 제시한 취소 조건이 기본 규정보다 의뢰인에게 유리한 경우 - 전문가가 별도로 명시한 사전 준비 사항(상담, 출장, 예약 등)과 이에 대한 취소 조건이 있는 경우 · 제공받은 용역이 표시·광고의 내용과 다르거나 계약 내용과 다르게 이행된 경우 용역을 공급받은 날부터 3개월 이내 또는 그 사실을 안 날 또는 알 수 있었던 날부터 30일 이내에 취소 및 환불이 가능합니다.
상품정보고시
| 서비스 제공자 | muf무프 | 취소/환불 조건 | 취소 및 환불 규정 참조 |
| 인증/허가사항 | 상품 상세 참조 | 취소/환불 방법 | 취소 및 환불 규정 참조 |
| 이용조건 | 상품 상세 참조 | 소비자상담전화 | (크몽 고객센터) 1544-6254 |
리뷰
0건
아직 작성된 리뷰가 없어요.



