
최근 받은 리뷰
서비스 설명
# 인테리어 디자인을 위한 오토캐드 REAL BASIC-PRO (교재)
인테리어 디자인 사무실 운영 경험과
대형 인테리어 설계 사무실 실무 경험,
럭셔리 패션 브랜드 인테리어 팀 실무 경험 등
직접 경험하며 터득한 가장 효율적인
AutoCAD 인테리어 도면 작성을 위한 기초-고급 명령어들을 알려드립니다!
# SBS 컴퓨터 아트 학원 강남점과 크몽 서비스를 통해서 직접 수차례 강의를 하면서 정리하고 다듬어진 강의안을 제공 합니다.
인테리어에 관심이 있어 배우기 시작한 일반인,
대학교 과제를 해야 하는 관련 전공 대학생,
자격증 취득을 준비하는 고등학생,
실무를 하면서 스스로 성장하고자 찾아오신 직장인 분들까지,
수강하신 여러 학생분들의 살아있는 피드백을 반영하였습니다.
강의 대상자 :
- 오토캐드 기초를 가장 빠르게 배우고 싶은 자격증 준비반 고등 학생, 관련 전공 대학생
- 나만의 공간을 예쁘고 효율적으로 꾸미고 싶은 자취생
- 인테리어, 리빙에 관심이 많아 계절에 따라 집 분위기를 바꾸고 싶은 센스있는 주부님
- 신혼집의 가구 배치를 직접 하고 싶은 신혼부부
- 카페, 공방, 나만의 가게를 창업 준비중인 사장님
- 오토캐드 프로그램에 관심은 있지만 학원에서 배우기는 부담스럽고 배울 시간이 없는 직장인
- 협력업체에서 작성한 도면을 확인하거나 간단히 수정 해야하는 발주처 김대리님
- 현장도 바쁜데 반복적인 도면 수정 작업 때문에 야근에 밤샘까지 해야하는 인테리어 회사 박대리님
------------------------------------------------------------------------------------------------------------
# 교재 내용
BASIC 과정 :
- 오토캐드 기초 과정 가장 빠르게 습득
- 오토캐드 필수 명령어 모음
- 셀프 인테리어 / 원룸 인테리어
오토캐드로 인테리어 도면을 그리기 위해 필요한 필수 명령어만 모아서 알려드립니다!
기초 과정에서 알려드리는 명령어들만 알고 있으면 오토캐드를 이용해서 스스로 원하는 형태와 인테리어 도면을 작성할 수 있습니다!
---------------------------------------------------
1. BASIC – 1 : AutoCAD의 개요와 기본
- AutoCAD 인터페이스
- AutoCAD의 마우스 커서 Crosshair & Pickbox
- 객체 선택법
- 좌표의 개념
- Line, Erase, Undo
- Line – 예제 (1)
- Line – 예제 (2)
- Osnap 객체 스냅
- Osnap 객체 스냅 설정
- Ortho 직교 모드
- Line, Osnap – 예제
2. BASIC – 2 : 그리기, 편집 필수 명령어
- Circle 원형 그리기
- Circle – 예제
- Rectangle 사각형 그리기
- Move 이동, Copy 복사
- Offset 평행 복사, Explode 분해
- Trim 자르기, Extend 연장
- Offset, Trim, Extend – 예제
- Fillet 모깎기
- 편집 명령어 – 예제 (1)
- 편집 명령어 – 예제 (2)
3. BASIC – 3 : 그리기 추가 명령어
- Polygon 다각형 그리기
- Polygon – 예제
- Ellipse 타원 그리기
- Ellipse – 예제
- Arc 호-아크 그리기
- Arc – 예제 (1)
- Arc – 예제 (2)
4. BASIC – 4 : 편집 추가 명령어
- Mirror 대칭 복사
- Mirror – 예제
- Rotate 회전
- Rotate – 예제
- Array – Rectangular 사각 배열
- Array – Polar 원형 배열
- Array – 예제 (1)
- Array – 예제(2)
- Scale 비율
- Scale – 예제
- Stretch 늘이기
- Stretch – 예제
- Chamfer 모따기
- Chamfer – 예제
------------------------------------------------------------------------------------------------------------
BASIC+ / PRO 과정 :
실무자가 아니라도 좋습니다,
하지만, 실무자라면 꼭 알아야만 합니다!
잦은 디자인 변경과 수정으로 불필요하게 늘어나는 업무시간으로 괴로웠다면,
디자인 할 시간도 부족한데 도면만 수정하다가 야근 하기에 지쳤다면,
과정 B 고급 명령어 과정을 추천드립니다!
대형 인테리어 설계 사무실에서 수 없이 많은 공간의 평면도와 입면도, 천장도, 단면도 등 다양한 도면을 작성하면서 터득한 필수 명령어와 요령으로 빠르게 도면을 수정하고 효율적으로 설계 과정을 운영할 수 있도록 도와드립니다!
---------------------------------------------------
5. BASIC+ – 1 : 레이어 설정 & 기본 평면도 작성
- Layer 레이어 (1)
- Layer 레이어 (2)
- Layer 레이어 (3)
- 평면도 작성을 위한 레이어 설정
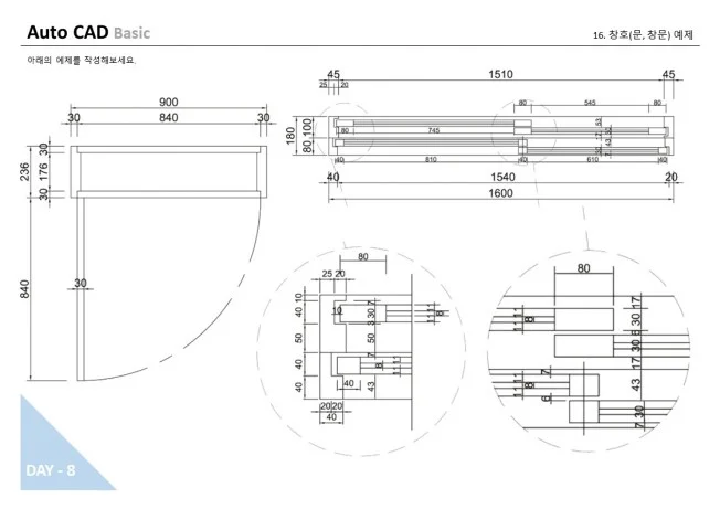
- 창호 그리기 예제
- 주거 평면도 : 중심선 작성 (1)
- 주거 평면도 : 중심선 작성 (2)
- 주거 평면도 : 중심선 작성 (3)
- 주거 평면도 : 벽체 기준선 작성
- 주거 평면도 : 벽체선 작성 (1)
- 주거 평면도 : 벽체선 작성 (2)
- 주거 평면도 : 창호 기입
- Text 문자 입력 (Mtext, Dtext, Ddedit)
- Text Style 문자 스타일
6. BASIC+ – 2 : 치수 입력
- Dimension 치수 명령어 (1)
- Dimension 치수 명령어 (2)
- Dimension 치수 명령어 (3)
- Dimension 치수 명령어 (4)
- 치수선 부위별 설명
- Dimension Style Manager (1 – Create New Dim Style)
- Dimension Style Manager (2 – Lines)
- Dimension Style Manager (3 – Symbols and Arrows)
- Dimension Style Manager (4 – Text)
- Dimension Style Manager (5 – Fit)
- Dimension Style Manager (6 – Primary Units)
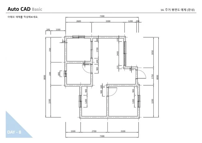
- 주거 평면도 : 중심선 + 치수 예제 최종
7. PRO – 1 : 고급 명령어 (Block & Hatch)
- Block 블록 생성
- Block을 가장 빠르게 만드는 팁!
- Block을 이용한 업무 효율 높이기! (1)
- Block을 이용한 업무 효율 높이기! (2)
- Block을 이용한 업무 효율 높이기! (3)
- Block을 이용한 업무 효율 높이기! (4)
- Block을 이용한 업무 효율 높이기! (5)
- Insert 블록 삽입
- Wblock 블록 쓰기
- 가구 Block – 예제 (1)
- 가구 Block – 예제 (2)
- 학생방 평면도 작성
- 학생방 천장도 작성
- Hatch 패턴 넣기 (1)
- Hatch 패턴 넣기 (2)
- Hatch – 예제 (1)
- Hatch 패턴 넣기 (3)
- Hatch – 예제 (2)
- Hatch – 예제 (3)
8. PRO – 2 : 실무 명령어 (MView & Plot)
- Layout 탭 (배치 영역) (1)
- Layout 탭 (MView, 배치 영역) (2)
- Layout 탭 (배치 영역) 설정 (1)
- Layout 탭 (배치 영역) 설정 (2)
- Layout 탭 (배치 영역) 설정 (3)
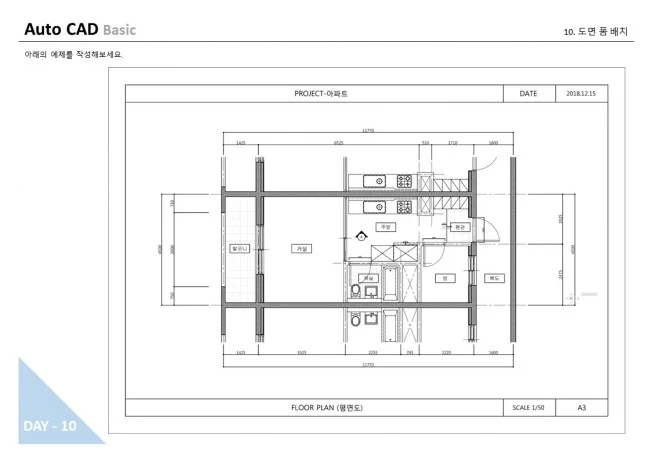
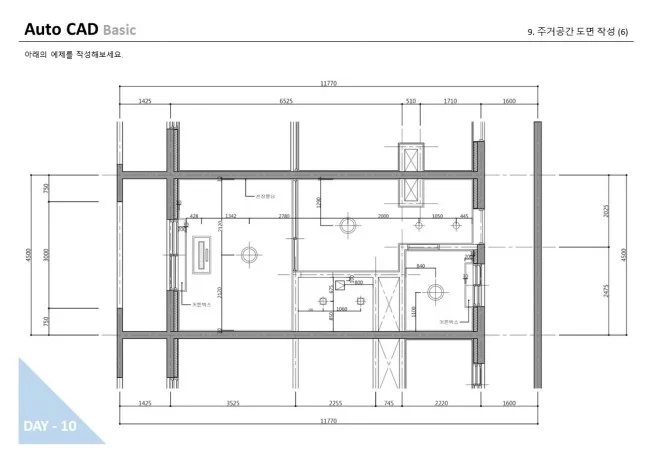
- 주거공간(원룸) 도면 작성 (1)
- 주거공간(원룸) 도면 작성 (2)
- 주거공간(원룸) 도면 작성 (3)
- 주거공간(원룸) 도면 작성 (4)
- 주거공간(원룸) 도면 작성 (5)
- 주거공간(원룸) 도면 작성 (6)
- 주거공간(원룸) 도면 작성 (7)
- 주거공간(원룸) 도면 작성 (8)
- Plot (출력) (1)
- Plot Style Table / CTB (1)
- Plot Style Table / CTB (2)
- Plot (출력) (2)
- Plot (출력) (3)
------------------------------------------------------------------------------------------------------------
# 교재를 통해서 무엇을 얻을 수 있을까요?
초보자의 경우
1.필수 명령어만빠르게 익힐 수 있다.
2.당장 필요한 도면을 작성할 사용할 수 있다.
3.프로그램에 대한 두려움과 부담감이 사라진다.
실무자의 경우
1.도면 수정 횟수를 줄일수 있다.
2.불필요한 야근을 줄일 수 있다.
3.설계과정을 정확하고 효율적으로 운영, 관리할 수 있다.
------------------------------------------------------------------------------------------------------------
# 이런 분에게 추천합니다.
- 오토캐드 기초를 빠르게 배우고 싶은 관련 전공 고등학생, 대학생
- 나만의 공간을 예쁘고 효율적으로 꾸미고 싶은 자취생
- 인테리어, 리빙 트렌드에 관심이 많아 집 분위기를 바꾸고 싶은 주부님
- 신혼집의 가구 배치를 직접 하고 싶은 신혼부부
- 카페, 공방, 나만의 가게를 창업 준비중이신 사장님
- 오토캐드에 관심은 있지만 학원에서 배우기는 부담스럽고 배울 시간이 없는 직장인
- 오토캐드를 독학하고 싶지만 시중에서 판매하는 책은 너무 두껍고 지루해서 독학을 하기에 어려움을 느끼는 분들
- 협력업체에서 작성한 도면을 확인, 간단 수정 해야하는 발주처 김대리님
- 반복적인 도면 수정 때문에 야근 해야하는 인테리어 회사 박대리님
- 그리고 여기까지 공감하며 읽으신 분들!
가격 정보
하루만에 배우는 AutoCAD 종합
과정 A : 초보자를 위한 오토캐드 기초 명령어 과정 B : 실무자를 위한 오토캐드 고급 명령어 통합본
작업일
1일
수정 횟수
0회
전문가 정보
총 거래 건수
만족도
회원구분
세금계산서
인테리어 디자인 사무실 운영 경험과 대형 인테리어 설계 사무실 실무 경험, 럭셔리 패션 브랜드 인테리어 팀 실무 경험 등 직접 경험하며 터득한 가장 효율적인 AutoCAD 인테리어 도면 작성을 위한 기초-고급 명령어들을 알려드립니다! 개인 및 기업 대상으로 인테리어 설계, 캐드 교육 프로그램을 운영하고 있으며, 필수 내용들만 모아서 제작한 캐드 교재도 배포하고 있습니다. 프로그램 교육, 인테리어 설계 강의 문의 받고 있습니다. 언제든지 문의주세요.
취소 및 환불 규정
[기본 규정] 1. 디지털 콘텐츠 제공이 개시되기 전: 취소 및 환불 가능 2. 디지털 콘텐츠 제공이 개시된 후 · 가분적 콘텐츠: 개시되지 않은 범위에 대한 취소 및 환불 가능 · 불가분적 콘텐츠: 취소 및 환불 불가 3. 용역 제공이 개시되기 전: 취소 및 환불 가능 4. 용역 제공이 개시된 후 · 가분적 용역: 제공이 개시되지 않은 범위에 대한 취소 및 환불 가능 · 불가분적 용역: 취소 및 환불 불가 5. 제공된 콘텐츠, 용역이 구매 확정된 경우: 거래 금액을 정산 받은 전문가와 직접 취소 및 환불 협의 [참고 사항] · 다음의 경우에는 해당 기준을 따릅니다. - 전문가가 제시한 취소 조건이 기본 규정보다 의뢰인에게 유리한 경우 - 전문가가 별도로 명시한 사전 준비 사항(상담, 출장, 예약 등)과 이에 대한 취소 조건이 있는 경우 · 제공받은 콘텐츠, 용역이 표시·광고의 내용과 다르거나 계약 내용과 다른 경우 콘텐츠를 공급받은 날부터 3개월 이내 또는 그 사실을 안 날 또는 알 수 있었던 날부터 30일 이내에 취소 및 환불이 가능합니다.
상품정보고시
| 제작자 또는 공급자 | Openisland | 이용조건, 이용기간 | 상품 상세 참조 |
| 최소 시스템 사양 필수 소프트웨어 | 상품 상세 참조 | 청약철회 또는 계약해지의 효과 | 상품 상세 참조 |
| 상품제공방식 | 상품 상세 참조 | 소비자상담전화 | 결제 전 상담 제공 |
리뷰
5건
5.0
(5)